Wohnhaus Erdbeergraben

Obergeschoss
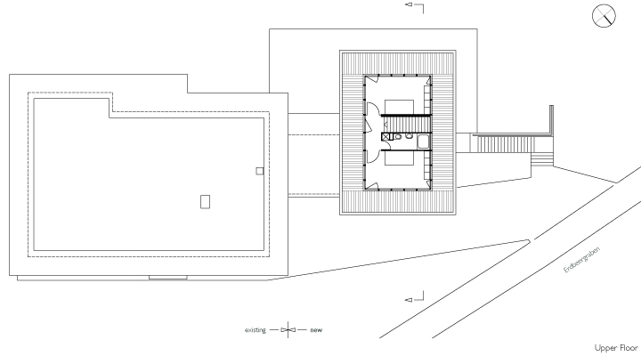
Das Obergeschoss wird wiederum vom Kern mit Nassraum in zwei
Schlafzimmer unterteilt.
Die Fassaden mit Fernblick sind sehr offen gehalten,
währenddem auf der NW-Seite eingebaute Schränke
für Stauraum sorgen.
Projekte