Wohnhäuser Amselstrasse

 

Bild 3

 

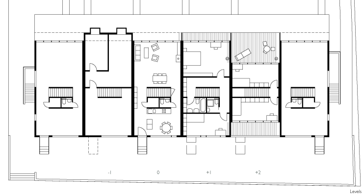
Häuser

Offene Wohnräume im Erdgeschoss, 2 Obergeschosse mit maximal 5 Zimmern. Raumdisposition nach Bedarf und Wunsch der Eigentümer.

 

Projekte